2020
Umbau Friedhof Hofegg
Gossau, SG
(Planerwahlverfahren)
Bauherrschaft
Hochbauamt Stadt Gossau
Planungsteam
Architekt: Geissmann Architektur
Bauleitung: Gloor Gottardo Baumanagement
Mitarbeit
Sandra Soares
Ryan Neubauer
Jeannette Geissmann
Bauaufgabe
Erneuerung Aufbahrungsräume und Mehrzweckbereich
Friedhof Hofegg in Gossau
Termine
Projekt 2017/2018
Ausführung: Herbst 2019 bis Frühling 2020
Fotografie
Anna-Tina Eberhard
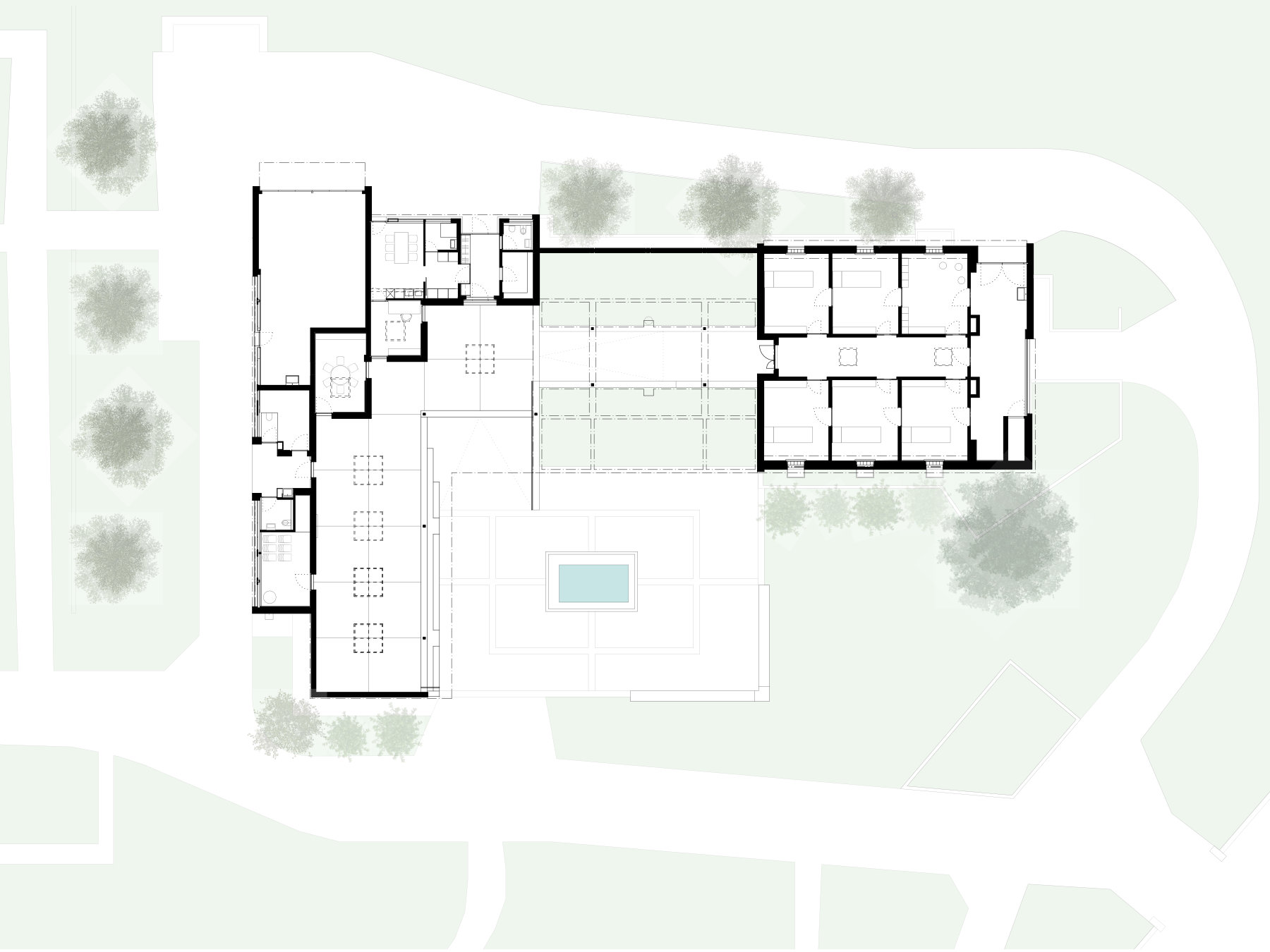
Der Bestand
Das stimmungsvolle Friedhofsgebäude wurde Anfang der 70-er Jahre vom Architekt W. Engler entworfen und erbaut. Der Bau ist in zwei Bereiche gegliedert, der Mehrzwecktrakt mit den betrieblichen Räumen und den Räumen der Abdankung, sowie der südliche Aufbahrungstrakt. Die beiden Bereiche sind im Aussenraum mit einer raumbildenden Betonstruktur überspannt und verbunden. Die gesamte Anlage wie auch die technischen Infrastrukturen befinden sich grösstenteils im Originalzustand. Auf der Friedhofanlage erfolgen im Jahr ca. 100 Bestattungen.
Konzept
Der Sanierungsvorschlag des Friedhofgebäudes ist mit grosser Sorgfalt und Respekt gegenüber dem architektonischen Bestand konzipiert worden. Der ursprüngliche Charakter des Gebäudes bleibt erhalten.
Die Erneuerung sieht folgende Massnahmen vor:
– Eine energetische Sanierung und die Erneuerung der Haustechnik
– Optimierung Raumanordnung und Infrastruktur
– Sanierung Gebäudehülle und statische Elemente
– Optische Aufwertung der Aufbahrungsräume
Gestaltung und Materialisierung
Die in die Jahre gekommenen Aufbahrungsräume wirken heute eher düster. Die atmosphärischen Qualitäten aus den 70- er Jahren gilt es mit wenigen baulichen Elementen zeitgemäss aufzufrischen.
Die dunkle Holzdecke der eher tiefen Räume wird durch eine helle Gips-Decke ersetzt. Um ein stimmungsvolles Raumambiente zu schaffen werden die Räume zudem mit einer einfachen Holzbank, einem neuen Licht- und Farbkonzept und profilierten Holz-Akustiktäfer an den Wänden ergänzt.


















