2020
Ideenwettbewerb Erneuerung Textilmuseum St. Gallen
(Ausgeschieden in der letzten Beurteilungsrunde Wahlgang, Stufe 1)
Veranstalter
Stiftung Textilmuseum St. Gallen
Planungsteam
Architekten: Geissmann Architektur, St. Gallen
mit Taro Tsuruta Architects, London
www.tsurutaarchitects.com
Statik: Merz Kley Partner, Herr Konrad Merz
Mitarbeit
Yves Raschle
Jeannette Geissmann
Bauaufgabe
Ideenskizze, Aufstockung Textilmuseum St. Gallen
CH – St. Gallen
Termine
Ideenwettbewerb 2020
Visualisierungen
Francesca Bergamini, New York
francescabergamini@googlemail.com
Ausgangslage
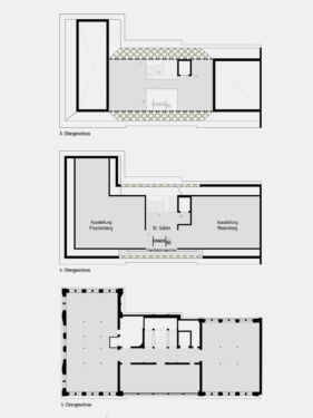
Im 19. Jahrhundert erfuhr die Stadt St. Gallen durch die Textilindustrie einen Aufschwung mit internationaler Ausstrahlung. Um das Wissen über diese Industrie zu bündeln, errichtete Gustav Gull im Jahre 1886 das Textilmuseum, ehemals Gewerbemuseum, St. Gallen. Heute kann dieses aber den Platzansprüchen nicht mehr gerecht werden. Aus diesem Grund hat die Stiftung Textilmuseum St. Gallen einen mehrstufigen Wettbewerb ausgeschrieben, der sich in der ersten Stufe mit einer Ideenskizze für eine Aufstockung auseinandersetzt, welche anschliessend in einem Projektwettbewerb für die Erweiterung und Reorganisation des gesamten Museums und der Planung eines Archivs weitergeführt wird.
Konzept „Pantograph“
Unser Vorschlag für die Aufstockung webt sich in die ursprünglich geplante Dachfigur ein und behält die Analogie zum ursprünglichen Dachprofil. Durch die Variation von solid und Öffnung entsteht, inspiriert durch die Topografie von St. Gallen, eine neue Landschaft. Hügel – Tal – Hügel, Rosenberg – St. Gallen – Freudenberg. Zwei vor Tageslicht geschützte Ausstellungsräume können flexibel bespielt werden. Zwischen den Räumen «Freudenberg» und «Rosenberg» findet die Saurer-Handstickmaschine (ca. 1890) ihren permanenten Platz. In der Hochblüte wurden rund 20’000 dieser Maschinen in der näheren Umgebung von St. Gallen genutzt und damit ein erheblicher Teil der weltweiten Stickereien produziert. So soll die Handstickmaschine an ihrem permanenten Platz im Ausstellungsraum «St.Gallen» diese wichtige Epoche der Stadtgeschichte versinnbildlichen.
Konstruktion / Materialität
Der Jugendstil konnte sich im 19. Jahrhundert durch die Textilindustrie stark im Stadtbild etablieren. Deshalb schlagen wir vor, die Fassade in diesen Ursprungszustand zurückzuversetzen und den Backstein mit seinem industriellen Charakter, wie auch die Ornamentik wieder hervorzuholen. Das sorgfältig gestaltete Dachkleid aus Messing und Glas, schafft eine harmonische Verbindung zur bestehenden Fassade. Der verglaste, mittlere Dachraum wird im Aussenbereich mit «Beschattungshütchen» versehen um die Überhitzung zu vermeiden. Aus der Ferne markiert das schimmernde Messingdach das Zentrum der Textilstadt St.Gallen. Der Palazzo Rosso wird wiedergeboren.
Energie / Technik
Die Form dieser «Brise-Soleil-Hütchen» wurde zusammen mit einem Energiespezialisten so optimiert, dass dieser die Sonneneinstrahlung während den heissen Monaten abschirmt, im Winter aber die Sonnen-Energie in das Dachgeschoss lässt, und dieses passiv beheizt. Es ist auch angedacht eine Wärmepumpe zu installieren, um im Winter die Sonnenenergie, welche durch das Glasdach kommt, zu nutzen und die Heizung des Museums nachhaltig zu unterstützen.










