2022
Vitus Überbauung Kesselhaldenstrasse
(Anonymer Wettbewerb im Einladungsverfahren)
Bauherrschaft
Stiftung für Wohnungshilfe St.Gallen
Planungsteam
Architekt: Jeannette Geissmann Architektur, St.Gallen
Landschaftsarchitekt: Parbat Landschaftsarchitektur St.Gallen
Mitarbeit
Alessandro Zotta
Philipp Kluckner
Fabian Zähnler
Jeannette Geissmann
Bauaufgabe
Neubau Alterswohnungen
Termine
Wettbewerb Sommer/ Herbst 2022
Visualisierungen
Filippo Bolognese Images
Ort & Einbindung
„Vitus“, ein einfaches, schlankes Wohngebäude mit einer vorgelagerten Balkonschicht strickt die bestehende, nachbarliche Siedlungsstruktur wie selbstverständlich weiter und stärkt das Quartier zwischen Strasse und Guggeienbach. Der neue Baukörper beinhaltet 17 altersgerechte Wohnungen mit Bezug zur Natur und ist vollumfänglich nach der Regelbauweise geplant.
Konzept & atmosphärische Ideen
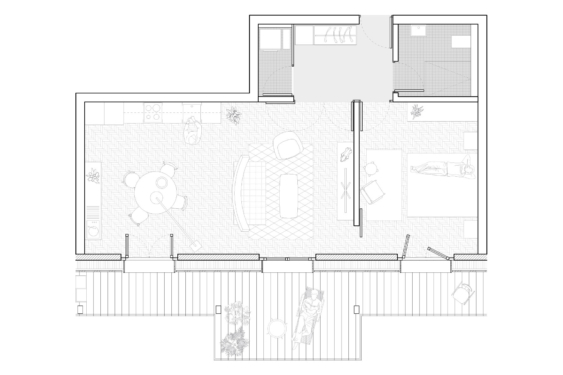
Der schlanke Baukörper ist als einfaches Volumen konzipiert. Kompakte Verkehrswege und eine minimale Fassadenabwicklung ermöglichen eine optimale Nutzung der Fläche und eine Vielfalt von Wohnungstypen für die unterschiedlichen Lebensentwürfe der älteren Menschen.
Die freundliche Holz- Fassade ist rhythmisch mit einheitlichen französischen Fenstern gestaltet, welche südwestseitig direkt auf die Balkone führen. Das grosse, geschwungene Dach verleiht „Vitus“ trotz der Grösse des Baukörpers einen freundlichen, individuellen Ausdruck. Wie ein farbiges Filterkleid in Leichtbauweise wird die Balkonschicht vor die Südwestfassade gestellt. Die Balkone sind mit einer textilen Beschattung vorgesehen welche gleichzeitig und individuell einen Sichtschutz und Privatheit gewährleisten.
Unser Ziel war im Wohnhaus Gemeinschaft und Austausch zu fördern wie auch eine hohe Privatsphäre für die Bewohner*Innen zu schaffen. Die Wohnungsgrundrisse sind sparsam, dennoch wirken sie grosszügig durch die gut möblierbaren Grundrissproportionen und die attraktiven Bezüge zum privaten Aussenraum. Durch die französischen Fenstertüren entsteht eine wunderbare Belichtung, gleichzeitig schaffen viele Wandflächen eine hohe Behaglichkeit.
Freiraumgestaltung
„Vitus“ wird via einem orthogonalen und barrierefreien Wegenetz an den Freiraum und die best. Erschliessungen angebunden. Via leicht geneigten `Rampen` erreicht man die beiden Hauszugänge.
Der barrierefreie Aussenraum ist vielfältig angelegt und deckt unterschiedlichste Nutzerbedürfnisse ab. Verschiedene grosszügige Begegnungsorte mit Sitzplätzen und altersgerechtem Mobiliar unter lichten Baumkronen, auskragende Sitzflächen am nahen Guggeienbach, Bereiche mit Hochbeeten und Pflanzgärten sowie ein lauschiger Obstgarten und artenreiche Blumenwiesen ergänzen das vielfältige Angebot.









